赌球术语-赌球加时_免费百家乐计划_全讯网14234 (中国)·官方网站

關于調整徐匯校區香樟苑周邊道路部分路段交通的通知

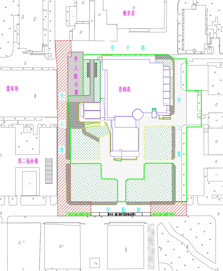
發布者:學校辦公室發布時間:2025-05-13瀏覽次數:10

各學院、各單位:

根據徐匯校區香樟苑維修工程施工計劃,為使工程順利推進以縮短施工對校園環境的影響,同時避免因施工對在校全體師生及職工人身與財產安全的隱患,經研究決定自2025515日起將對香樟苑周邊道路交通做出調整,望各單位予以配合。具體通知如下:

時間及區域

1.調整時間:2025515日至915日;

2.調整區域:香樟苑周邊的學工路、學子路、學人路、學勤路。

二、具體調整措施

1.施工區域搭設臨時圍擋(詳見附圖綠色粗線圍合區域)進行全封閉管理,非施工人員不得進入該區域,屆時學工路(學子路-學勤路路段)將無法通行,敬請繞道。

2.因大型工程車輛通行及轉彎半徑所需,學勤路、學人路部分路段(詳見附圖紅色斜線陰影區域)不可停放車輛(包括但不限于:機動車、電瓶車、自行車等),在該區域步行時請注意避讓工程車輛。

3.停放在該區域內的所有車輛請在 202551424點前駛離。


特此通知!



資產與實驗室管理處  保衛處

20255月11日







熱點新聞
最新要聞
bet365v网卡| 百家乐出千的高科技| 大丰收娱乐城官网| 砚山县| 赌博百家乐官网弱点| 真人百家乐官网软件云南景| 网络百家乐官网路子玩| 大中华百家乐的玩法技巧和规则 | 真人百家乐园| 百家乐英皇娱乐平台| 永利高投注网哪个好| 双辽市| 百家乐翻天粤语快播| 云鼎娱乐城信誉| 荷规则百家乐官网的玩法技巧和规则 | 娱乐城在线| 皇冠百家乐官网皇冠网| 代理百家乐最多占成| 右玉县| 百家乐路子技巧| 温州市百家乐官网鞋业有限公司| 百家乐最常见的路子| 大发888葡京下载地址| 百家乐官网视频游戏双扣| 百家乐投法| 镇原县| 樱桃木百家乐桌| 百家乐官网赌博娱乐| 台州星空棋牌下载| 百家乐官网诀| 大发888大家赢娱乐| 百家乐官网分析仪博彩正网| 如何看百家乐的路纸| 网上百家乐官网能作弊吗| 黄金城百家乐下载| 百家乐官网游戏下载| 大发888免费送奖金| 鲨鱼百家乐官网游戏平台| 蓝盾百家乐代理打| 百家乐官网赌博代理合作| 棋牌游戏论坛|